Đăng nhập Đăng ký

Bán lô đất đẹp tại khu đấu giá Văn Quán, Đỗ Động,hàng xóm của Vin Olympic. Sổ đỏ cất két, cơ hội

Vị trí:
Giá: 100 TỷDiện tích: 110 m²
In bài này Lưu tin

Mô tả chi tiết

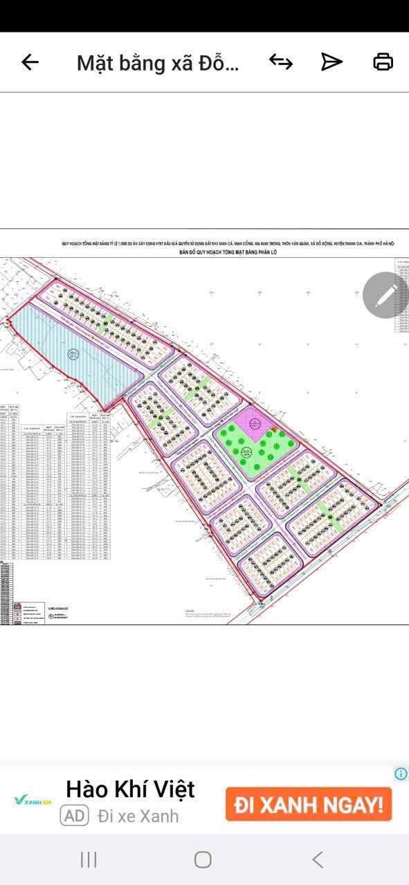
Bán lô đất đẹp tại khu đấu giá Văn Quán, Đỗ Động,hàng xóm của Vin Olympic. Sổ đỏ cất két, cơ hội X2, X3 cho các nhà đầu tư.
- LK 50 góc trục chính , hướng đông nam mát mẻ, DT 110,6 m2, chiều rộng 6,5m chiều dài 14m . Nằm ngay ngã tư khu đấu giá vị trí đắc địa.
LH: 0912123030 ;0902123030 để đc tư vấn tận tâm nhất.
Hình ảnh (3) Bản đồ

Thông tin chi tiết

Mã tin15988229
Hướng ban côngĐông-Nam
Đường vào14 m
Ngày đăng tin09/04/2026
Ngày hết hạn09/07/2026

Thông tin liên hệ

Tên liên lạcLan Nguyễn
Địa chỉSố 8 Quốc Tử Giám
Điện thoại0912123030
Di động0912123030

Thông tin chi tiết

Mã tin15988229
Hướng ban côngĐông-Nam
Đường vào14 m
Ngày đăng tin09/04/2026
Ngày hết hạn09/07/2026

Thông tin liên hệ

Tên liên lạcLan Nguyễn
Địa chỉSố 8 Quốc Tử Giám
Điện thoại0912123030
Di động0912123030
Email
Các tin rao cùng khu vực
Nhà đất bán Nhà đất cho thuê
Bán nhà biệt thự, liền kề theo Xã tại huyện Thanh Oai
Liên kết nổi bật
Tin đã lưu